update 10.01.2007
Or oD-jb
|
Geburts- oder Eigenname: Merbiape (mrj-bj#-pw)
(Abydos 6), Mer-bia-pen (mrj-bj#-pn)
(Saqqara 1), Mer-gerg-pen (mrj-grg-pn)
(PTurin 2.16)
|
Hor Adj-ib (01-07-01)
|
Vater: Den ?
Ehefrau: - Söhne: - Töchter: - |
Auf dem Palermostein ist der Name des Königs nicht erhalten. So ist von ihm nur wenig bekannt. Auf Steingefäßen ist ein Sed-Fest überliefert, das wohl aus besonderem Anlass gefeiert wurde. Länger als 10 Jahre scheint er nicht regiert zu haben (unter Berücksichtigung der extrem langen Regentschaft seines Vaters).
Wie bereits seine Vorgänger ließ Adj-ib eine Grabanlage in Abydos (Grab X) errichten, unmittelbar neben der Anlage seiner Großmutter Mer-Neith .
Abydos,
Grab des Adj-ib (0
Neben dem bescheidenen Grab von Abydos datiert man einige Grabanlagen von Saqqara in die Zeit des Adj-ib, hier die Nummern S 3505 Mereka, S 3507 Horneith und S 3038 Nebitka, wobei das Letztere auch für das Grab des Adj-ib gehalten wird.
Saqqara, Grab 3507, Fassade (0
1-07-03)Grab 3507 (Horneith) ist ein Höflingsgrab.
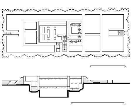
Der 37,90 m x 15,80 m große Bau liegt innerhalb einer Umfassungsmauer und hat nischengegliederte Fassaden. Er steht auf einem Unterbau aus Ziegeln und ist in 39 Kammern unterteilt, der Boden ist aus Sand. Die Grabkammer wurde 4,75 m tief in den Felsen gehauen und besteht aus 2 Geschossen, die beide mit einer Balkendecke abschließen. Ein schmaler Abschnitt des Untergeschosses ist mit Kalksteinplatten abgedeckt, unter denen ein Kalksteinarchitrav verläuft, der einen grob gearbeiteten Fries liegender Löwen trägt.
Gehalten von einer einfachen Lehmziegelmauer war die Grabkammer mit einer Schicht von Schutt und Sand abgedeckt.
Ein Teil der Ostfassade ist überraschend gut erhalten, sie zeigt noch Eindrücke der Rundbalken im oberen Teil der Nischen. Der Verputz ist auf den unteren Wandpartien erhalten; er trägt gelben Anstrich, während die Rückwand der Mittelnische rot bemalt ist.

Saqqara, Grab 3507, Riss und Schnitt (0
1-07-04, 01-07-05)
Saqqara, Grab 3507, Zeichnung (0
1-07-06)Die Mastaba 3038 des Fürsten Nebitka (oder doch des Adj-ib?)
zeigt äußerlich keinen Unterschied zu anderen Gräbern dieser Dynastie.
Grabkammer und Vorratskammern wurden jedoch unter und innerhalb eines
rechteckigen Grabhügels angelegt, der an drei Seiten in niedrigen Stufen aus je
drei Ziegellagen ansteigt. Es scheint sich hier um eine Weiterentwicklung des
Tumulus aus Grab 3507 zu handeln, der nächste Schritt auf dem Weg zur Stufenmastaba.

Saqqara, Grab 3038 (0
1-07-07)
Saqqara, Grab 3038, Riss und Schnitt (0
1-07-08)Quellen:
Lauer, J.P., Die Königsgräber von Memphis. London 1976
Schneider, Th., Lexikon der Pharaonen. Düsseldorf 2002
von Beckerath, J., Münchner Ägyptologische Studien (MÄS 46 und 49) Mainz 1997/99